

剧院之于城市 应成为人们美好回忆
山东省会文化艺术中心大剧院选址在济南西客站片区核心区内,东起腊山河东路,西至腊山河西路,南起日照路,北至威海路。剧院由法国著名设计师——保罗·安德鲁先生主持设计,
他的代表作有巴黎戴高乐机场、中国国家大剧院等著名建筑,他希望大剧院成为人们保存美好记忆的一片岛屿。

济南大剧院采用“岱青海蓝”的设计理念,明确地勾勒出山东靠山近水的地理景观及孔孟之乡的文化环境。“岱青”取意泰山,代表了齐鲁人民自强不息、厚德载物、勤谨睿智的精神。
“海蓝”象征着山东半岛依山傍水、三面环海的优美地理环境,并勾勒出孔孟之乡的文化环境和深厚的文化底蕴。二者合一,实现了建筑与城市、文化与生活的融合。

场馆南面为三个独立的“壳”组成了这个“大剧院”:一个歌厅、一个音乐厅和一个多功能比赛场馆组成。三个巨大的壳和三个塔构成了一个连续的对话,
成了这个项目的特色,也成了这片区域内的标志性建筑,建筑表皮由不透明的金属覆盖。
【大剧院内部,全部采用环保速生的现代高科技竹材,大庄团队致力于为项目提供竹材应用解决方案,在整个剧院的内部,采用大庄研发的防火声学天花板和墙板】
一丝不苟 呈现美好的艺术设计效果
针对大剧院的内部设计,安德鲁先生表现出建筑设计大师的职业情操,很好地处理了建筑和城市的关系、建筑和环境的关系,特别是针对细节,表现的一丝不苟。诸如穿孔板的材质、穿孔率、
穿孔密度都是经过精心的设计与比较;座椅扶手与靠背的弧度经过精心测算,力求最大限度符合人体工学;甚至声闸门把手、合页都是亲自设计,力求与整体设计相融合。

声波作为一种机械能,当其入射到吸音板上时,声能一部分被吸收,一部分被反射,另一部分透射。当声波进入 材料孔隙后,孔隙中空气和细小的纤维发生振动,
在摩擦和粘滞阻力作用下,声能转化为热能。按物理性能和吸声方式,可分为多孔材料吸声和共振结构吸声。

济南大剧院选用的是多孔材料吸声,竹铝蜂窝吸音板,不但保留了其优良的品质,而且吸音效果更好。实竹吸音板保留了其自然肌理,
契合空间的主体造型风格,使墙面装饰显示出柔和的情调,并很好地解决了建筑声学问题,达到了审美性与实用性的统一。

样板图
吸音板是一种能吸声的材料和结构,表面有许多细小的孔,本身的材质是实竹,所以室内产生的噪音声波在传播的过程中会反射一部分能量同时也吸收了一部分的能量,
很大程度上减少了接受者接收到的噪音。

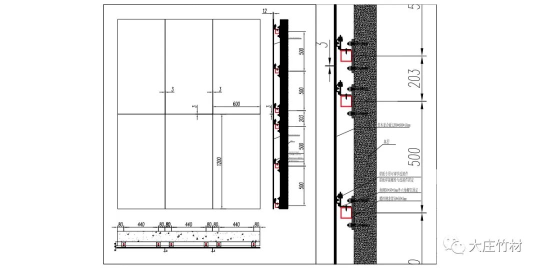
竹铝蜂窝吸音板有大量细密、均质的微小空隙和孔洞。吸音板厚度为19mm,如果材料太薄,则不能起到有效的吸声作用,一般情况如果要达到较为理想的吸声效果,
吸声材料的厚度要大于10mm。每个孔径为1mm,孔距为9mm,多孔吸音板的孔隙多,孔径小,吸音系数高,其吸音性能越好。

吸音板是理想的吸音装饰材料,吸音、隔热、保温、施工简便都是它的优点,竹铝蜂窝吸音板是一种新型室内吸声装修材料,此材料最大的优势在于能够根据不同的需要缩短并调节
混响的时间,从而提高音响的效果,改善声音的清晰程度,同时质量相对而言比较轻,非常适合作为墙体的吸音材料。

03 艺术设计
弧形千变万化,自由自在,设计师可以创造出任意曲线组成的空间。室内全部应用竹材,造型雅观、光彩幽雅、立体感强,而且以实竹弧划分座位区域,
给人以饱满、柔和、圆润的感觉。同时浅黄色的实竹搭配着灯光,使整个厅都充满暖意,给观众极好体验感。


连续的实竹弧形体现了大庄高超的工艺技术,流畅的线条,给人视觉上的延伸。同时也只有竹材才可以做到如此强劲的柔韧性,除此之外竹材原生态、绿色环保。
04 细节体现
所选用的座椅为保罗安德鲁所设计,造型独特,和建筑和竹材在颜色和设计上融合度很高。这是一个独特性设计,靠背呈倾斜角度,符合人体工学。
而且座椅的外观效果非常好,轻盈而高雅靠背同时作为行人的扶手支撑,这样的座椅已经在中国量产。


工匠精神 实现一流的声学品质
大剧院内部,全部采用环保速生的现代高科技竹材,大庄团队致力于为项目提供竹材应用解决方案,在整个剧院的内部,采用大庄研发的防火声学天花和墙板、
20000平米的大型竹室内应用工程,是大庄继无锡大剧院之后,国内竹应用在剧院的又一大型应用,此次材料研发有三大难点。

『01 均匀平衡的声场 』
一个好的音乐厅需要把反射声均匀散布,以使得在各个位置的听众都能获得高质量的音乐体验。剧院设计成双曲形状就是为了避免声音传播出现明显的不均匀现象。
为了配合设计师整个剧院的弧面造型,每片天花采用不同的弧度声学竹板,根据每块板的安装扣件的渐变来实现曲面。

『02 材料要求』
由于整个剧院都选用竹材,对材料的要求特别高。大规模的竹材应用需要非常轻的质量要求以便安装,而大庄的竹铝蜂窝吸音板恰恰符合要求。
吸音板具有材质轻、稳定型、强度高、装饰效果好、组装轻便等特点。适用于既要求有竹材装潢及温暖结果、又有吸声要求的剧院。

『 03 防火性能 』
剧院除了对材料的吸音有要求外,对防火要求也特别高。铝本身属于无机材料,其的防火性能很好,但无机吸音材料大都存在吸音效果不佳等缺点,限制了它的使用。而竹子是一种有机物,属于易燃材料,
但是经过大庄的研究和探索,大庄竹材的防火等级达到B1级。新型防火竹材与铝板的结合,就是有机材料和无机材料的结合,不仅吸音效果增强,而且防火性能也极好。

大剧院是声学艺术与建筑艺术的完美结晶,完美的剧院设计与施工,不仅是一次非凡的文化之旅,还是对令人如痴如醉的天籁之声的追寻之旅;
而这,也正是安德鲁团队与大庄团队充分运用各自专业的技术,极致打造每一项建筑工程的原因所在。
项目信息
项目名称:山东·济南大剧院
项目地址:山东省济南市
项目时间:2013
项目面积:6000㎡
材料来源:大庄竹材
Copyright © 2019 广州大庄竹业有限公司 粤ICP备17133805号